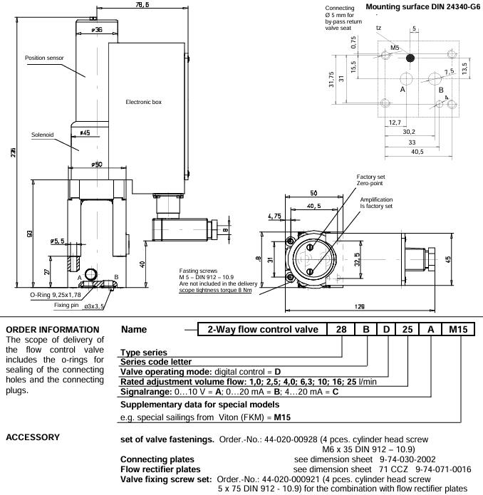
二通流量控制阀是带有集成压力平衡的流量阀(节流阀)。阀门自动保持恒定的可调节流量,不受进出管线压力变化的影响。
描述:
2 通流量控制阀
通过比例电磁阀驱动
路径传感器
集成控制电子元件
面板结构 NG 6
孔型符合 DIN 24 340-G6 标准
6 个标称体积流量范围 1 l/min 至 25 l/min
最小可控体积流量约 10-20 厘米3/分钟
Pmax= 210 巴
特点:
• 电磁阀系统:力控制、耐压
无需打开系统即可更换线圈
• 集成数字控制器
• 可远程控制、可编程
• 阀门中立位置:关闭
• 浮动时间 70 毫秒
• 体积流量信号功能:(可选不同特性)
• 安装在带有管接头或控制块的连接板上
• 带旁通止回阀
• 标准密封材料 Buna N/NBR
• 可根据要求提供特定解决方案,例如斜坡功能、阈值切换等
